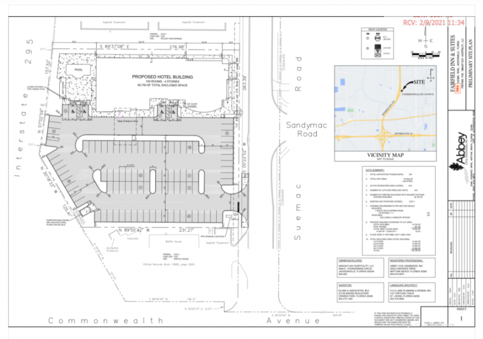
A developer for Fairfield Inn & Suites by Marriott is preparing to build a 100-room hotel on 1.68 acres at 1054 Suemac Road in Jacksonville Florida. The city is reviewing a permit for the four-story, 61,600-square-foot hotel at a cost of $9.9 million. The city issued a site-clearing permit Nov. 17. The site is at northeast Commonwealth Avenue and Interstate 295 in West Jacksonville. The developer is listed as SWAGAT1024 Hospitality LLC. Abbey Civil Engineers Inc. is listed as the general contractor, Eiland & Associates Inc. is listed as the project’s surveyor and A&K Land Planning & Design Inc. is listed as the landscape architect. St. Johns County is also reviewing an application for conceptual plans for a 55,000-square-foot Fairfield Inn & Suites by Marriott on 5.17 acres at 1740 County Road 210 W. The site is at northwest Interstate 95 and County Road 210.