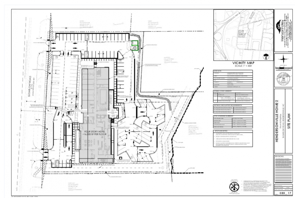
Developer Sanjay Patel with Sugarloaf Hospitality submitted an application to the city to rezone the 2.3-acre property from Planned Commercial Development to Planned Commercial Development Conditional Zoning District in Hendersonville North Carolina. The hotel is proposed to be around 66,000 square feet and includes a meeting room. The site plan states there will be 98 rooms. Plans include a landscaped buffer between the proposed hotel and houses and an underground storm water system that should mitigate a lot of the flood risk. The next steps are for plans to be reviewed by city planning staff, the Tree Board and Planning Board then a public hearing will be held before City Council prior to its vote.
 
For detailed information on upcoming hotel developments, construction & renovation projects in the planning, design, pre-construction and construction phases including who is involved plus their contact information and our Preferred Vendor Directory, please visit: HotelProjectLeads.com and subscribe today.